Smart Erosion Planning for 3-Phase Development in Texas

Smart Erosion Planning for 3-Phase Development in Texas

Introduction

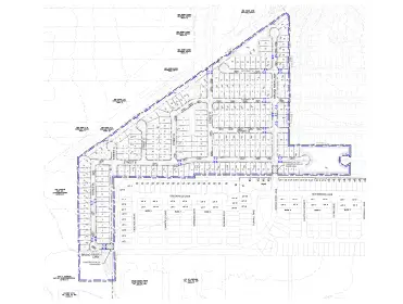
A 143-acre residential development in Texas required a comprehensive erosion control plan to support phased construction while minimizing environmental impact. With varying terrain and ongoing site activity, the client needed a solution that would effectively manage Stormwater runoff, prevent soil erosion, and comply with county regulations. The challenge was to design a plan that could adapt to each development phase while integrating seamlessly with existing site conditions and infrastructure.

Key Challenges

  1. Phased construction impact

    Managing erosion control measures across three phases required careful planning to ensure protection during each stage of site development without disrupting ongoing work.

  2. Stormwater runoff management

    Controlling runoff across a large 143-acre site meant designing systems that could handle varying flow conditions and prevent sediment displacement.

  3. Regulatory compliance

    Meeting county-specific erosion and sediment control standards required strict adherence to guidelines to avoid approval delays and penalties.

  4. Topographical variations

    Varying elevations and slopes increased the risk of erosion, requiring precise placement of control measures to ensure effectiveness.

  5. Integration with existing infrastructure

    Aligning erosion control strategies with existing drainage systems and site utilities without causing conflicts or inefficiencies.

Approaches and Solutions

  1. Comprehensive site analysis

    Reviewed surface data, site plans, and existing infrastructure to understand runoff patterns and erosion-prone areas.

  2. Phase-wise erosion control strategy

    Designed control measures that could be implemented progressively, ensuring each phase remained protected throughout construction.

  3. Regulation-driven design

    Followed county design manuals closely to ensure all erosion control measures met compliance requirements.

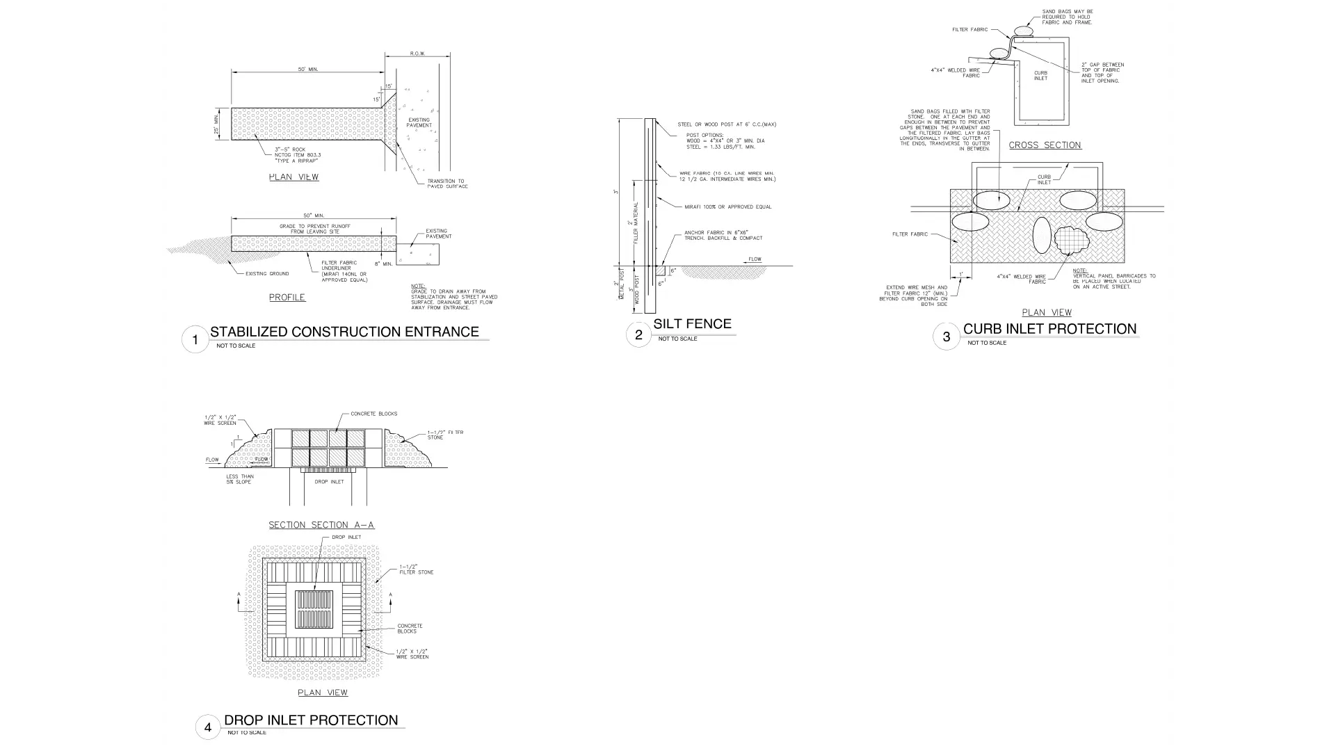
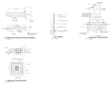
  4. Strategic placement of control measures

    Identified key locations for silt fences, sediment basins, and drainage controls to effectively manage runoff and soil movement

  5. Coordination with drainage systems

    Integrated erosion control solutions with the overall site drainage design to maintain efficiency and avoid conflicts.

  6. Standardized documentation

    Used client-provided templates to ensure clear, consistent, and easy-to-review drawings.

Final Outcome

  • Delivered a comprehensive, construction-ready erosion control plan for the entire development.

  • Ensured effective Stormwater and sediment management across all three phases.

  • Achieved full compliance with county regulations, minimizing approval risks.

  • Reduced potential for on-site erosion issues and environmental impact.

  • Enabled the client to proceed with construction confidently and efficiently.

Client Overview

The client is a US-based land development firm focused on residential communities. They prioritize efficient planning, regulatory compliance, and sustainable site development, relying on accurate design documentation to support smooth project execution.

Plan Smarter Stormwater Systems with Accurate Mapping

Get precise insights into drainage patterns and improve overall site performance.

Senior Accounts Manager

Nabil Shaikh is the Senior Accounts Manager at Gsource Technologies, overseeing key departments including land surveying, civil engineering, and signage design. With a strong understanding of multidisciplinary workflows, Nabil ensures seamless coordination between teams and clients, driving projects toward successful outcomes. Known for his detail-oriented approach and commitment to delivery, Nabil plays a crucial role in strengthening client relationships and ensuring consistent project performance.

(Enter captcha image text in box)

USA (Corporate Address)

UAE

Pune

Mumbai