Commercial Boundary Survey Drafting Services

Boundary survey drafting for commercial developments, ensuring compliance and clarity.

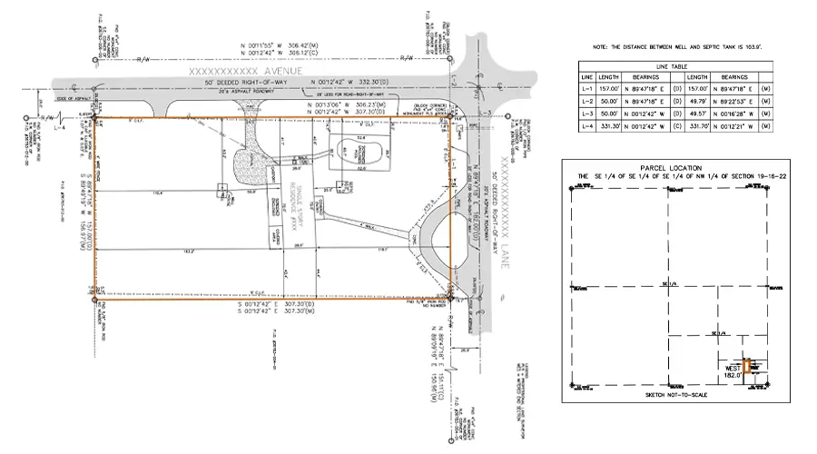
At Gsource, we provide precise and comprehensive drawings for your commercial land survey. Our expert design and drafting team specializes in identifying property boundaries, encroachments, improvements, boundary monuments, topographical features, zoning requirements & more. Commercial Boundary Survey Drafting ensures that your commercial property survey is accurately drafted according to ALTA/NSPS standards.

These detailed drawings and documentation are essential for identifying potential legal encroachments that may affect land use and property value. We ensure that every draft adheres to the necessary ALTA/NSPS regulations and codes, giving you confidence in your property documentation. Let us help you navigate the complexities of commercial land surveys with accuracy and professionalism.

Write to Us
Commercial Boundary Survey Drafting Services

Commercial Boundary Survey Drafting Deliverables

Commercial Boundary Survey Drafting Deliverables

CAD Drawings

3D Surface Model

Exhibits

Contour Maps

Land Use Plans

Commercial Boundary Maps

Commercial Boundary Improvements

Legal Descriptions

Why Outsource Commercial Boundary Survey Drafting Services?

Commercial Boundary Survey Drafting can become a difficult task at times and also requires detailed and expert accompaniment. Outsourcing these services can benefit you in certain ways

Saves you your time and money through your Boundary & Topo Drafting Services

Saves you your time and money

Access a dedicated team of professionals at Gsource Technologies for expert project execution.

Gives you access to experts

Maintain compliance with regulatory standards through Gsource Technologies’ expert design services

Keep your designs complied with codes and regulations

Gain access to innovative technologies and tools that drive project success

Get access to advanced technologies and tools

Here, at Gsource, we have skilled professionals and experts who provide our clients with precise and accurate designs and drafts for their commercial lands and properties. We have advanced tools for drafting including AutoCAD and more to get you apt results that also comply with codes and regulations.

Our Expertise in different Domains

Real Estate Development

Commercial & Industrial properties.

Construction

Infrastructure projects such as roads, bridges & buildings.

Environmental

Wetland delineation, floodplain mapping & conservation projects.

Utilities

Power lines, pipelines & water supply networks.

Government

Municipal planning, public works & transportation departments.

How It Works

Your Project is Ready in 5 Easy Steps

01

Photogrammetry Data Processing and Mapping services Step1-Initialization

Step 1

Initial Planning

Before we start our drafting, we plan and collect information like current building details, survey files, sidewalks, pavements, monuments or improvements on land & others from our clients.

Initial Planning

Before we start our drafting, we plan and collect information like current building details, survey files, sidewalks, pavements, monuments or improvements on land & others from our clients.

02

Mortgage Survey Drafting Services Step2-Drafting

Step 2

Drafting

After we have all required documents, our team of experts begins to draft their surveyed land with linework drafting and other processes.

Drafting

After we have all required documents, our team of experts begins to draft their surveyed land with linework drafting and other processes.

03

Mortgage Survey Drafting Services Step3-Quality Check

Step 3

Quality Check

Once these files are created, our team of quality checkers makes sure every file is made according to codes and regulations of that county and ALTA/NSPS.

Quality Check

Once these files are created, our team of quality checkers makes sure every file is made according to codes and regulations of that county and ALTA/NSPS.

04

Mortgage Survey Drafting Services Step4-Client Review

Step 4

Client Review

After we have our files ready, we send them to our clients for their review and feedback and make changes if there are any.

Client Review

After we have our files ready, we send them to our clients for their review and feedback and make changes if there are any.

05

Boundary & Topo Drafting Services Step6-Final Deliverables

Step 5

Final Deliverable

Finally, after making the necessary changes, we deliver our final CAD drafts and files to our client in their required file format.

Final Deliverable

Finally, after making the necessary changes, we deliver our final CAD drafts and files to our client in their required file format.

Why choose Gsource?

Why choose Gsource technologies-Renowned Standing

Renowned Standing

Due to skills we hold, both large and small roll-out firms want to benefit from our knowledge and expertise.

Renowned Standing

Due to skills we hold, both large and small roll-out firms want to benefit from our knowledge and expertise.

Why choose Gsource technologies-Modern Tech Solutions

Modern Tech Solutions

We use high-tech solutions to understand design and construction requirements for Commercial Boundary Survey Drafting Services.

Modern Tech Solutions

We use high-tech solutions to understand design and construction requirements for Commercial Boundary Survey Drafting Services.

Why choose Gsource technologies-Quick Turnaround Time

Proficient R&D Team

We have an R&D team that can handle vast data collection, which can feel like a task for other companies.

Proficient R&D Team

We have an R&D team that can handle vast data collection, which can feel like a task for other companies.

Why choose Gsource technologies-High Competent Staff

Quick Turnaround Time

Timely actions and efficient outputs minimize delays, maximize productivity & ensure prompt commercial boundary survey drafting services for our clients.

Quick Turnaround Time

Timely actions and efficient outputs minimize delays, maximize productivity & ensure prompt commercial boundary survey drafting services for our clients.

Why choose Gsource technologies-Close to the Mark Output

Close to the Mark Output

The data used by us for creating topographic maps, volume calculation & distance measurements provides results to the point.

Close to the Mark Output

The data used by us for creating topographic maps, volume calculation & distance measurements provides results to the point.

Why choose Gsource technologies-High Competent Staff

High Competent Staff

The experience that our team holds is what sets us apart. With training programs, our team of 300 members can deliver top-tier results laid over a 30,000-square-foot Class A Office space.

High Competent Staff

The experience that our team holds is what sets us apart. With training programs, our team of 300 members can deliver top-tier results laid over a 30,000-square-foot Class A Office space.

Why choose Gsource technologies-Affiliation with Reputable Entities

Affiliation with Reputable Entities

We are active members of national and international surveying, architectural, engineering & geospatial organizations.

Affiliation with Reputable Entities

We are active members of national and international surveying, architectural, engineering & geospatial organizations.

Why choose Gsource technologies-Advancing the field of Mortgage Survey Drafting services

Advancing the field of Commercial Boundary Survey Drafting services

As a service provider, we’ve supported and served companies across the US. Our dedication produces excellent quality that propels industry success.

Advancing the field of Commercial Boundary Survey Drafting services

As a service provider, we’ve supported and served companies across the US. Our dedication produces excellent quality that propels industry success.

FAQs

Contact us to obtain professional commercial boundary survey drafting services, including precise boundary maps & site plans tailored to your commercial property.

Our commercial boundary survey drafting packages include detailed boundary maps, site plans, property lines & legal descriptions to meet your commercial needs.

Yes, we offer commercial boundary survey drafting services for multi-use properties, ensuring accurate boundary definitions & site layouts for diverse commercial applications.

Yes, we offer digital commercial boundary survey drafting services, providing you with electronic copies of site plans and boundary surveys for easy integration and review.

Our commercial boundary survey drafting services provide accurate property boundaries & detailed site plans, helping you make informed decisions during property acquisition.

(Enter captcha image text in box)

Talk to us

At Gsource Technologies, we’re ready to help! Tell us what you need, and we’ll connect you with the right experts.

gsource service

Free Initial Consultation - No Commitment Required

gsource service

Secure and Confidential Project Information

gsource service

16+ Years of AEC Expertise

gsource service

300+ Drawing Deliverables Daily

gsource service

Industry Standards Compliance Guaranteed

Upload a File (Optional)

File(s) size limit is 20MB.

Got a bigger file? Just drop a shareable link in the description instead.

USA (Corporate Address)

UAE

Pune

Mumbai