Efficient Stormwater Design for 143-Acre Development

Efficient Stormwater Design for 143-Acre Development

Introduction

A 143-acre residential development in Texas required a detailed Stormwater plan and profile to manage runoff efficiently across a multi-phase site. With varying terrain and expanding infrastructure, the client needed a solution that ensured proper drainage, minimized flooding risks, and complied with county regulations. The objective was to design a coordinated Stormwater system that could function effectively across all phases while integrating seamlessly with the overall site development.

Key Challenges

  1. Phased development coordination

    Designing a Stormwater system that worked cohesively across three phases required careful planning to avoid inconsistencies and ensure long-term functionality.

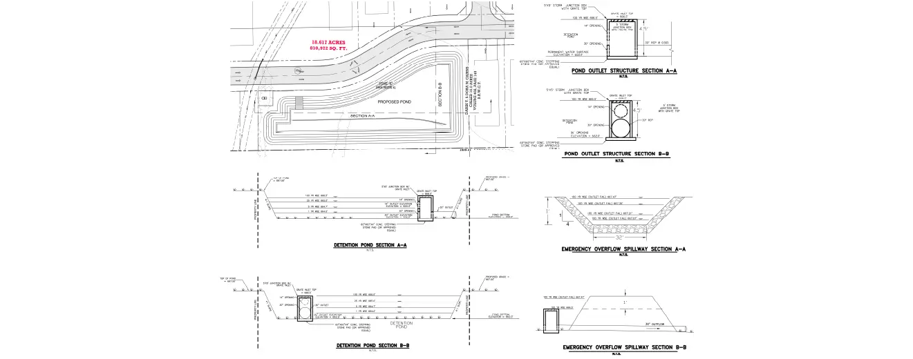
  2. Stormwater flow management

    Managing runoff across a large site meant accounting for varying flow volumes, peak conditions, and efficient discharge points.

  3. Topographical variations

    Changes in elevation impacted drainage patterns, requiring precise grading and pipe design to maintain effective flow.

  4. Regulatory compliance

    Meeting county drainage and Stormwater standards required strict adherence to design guidelines and documentation requirements.

  5. Integration with existing infrastructure

    Ensuring new stormwater systems aligned with existing drainage networks without causing conflicts or inefficiencies.

Approaches and Solutions

  1. Detailed site and data analysis

    Reviewed all input data, including surface models and existing infrastructure, to understand drainage patterns and constraints.

  2. Phase-wise Stormwater planning

    Developed a scalable stormwater design that ensured continuity and performance across all three development phases.

  3. Accurate plan and profile development

    Created detailed Stormwater plans and pipe profiles considering slope, flow capacity, and terrain conditions.

  4. Regulation-compliant design approach

    Followed county design manuals closely to ensure all elements met approval standards.

  5. Integrated system coordination

    Aligned Stormwater layouts with roadways, utilities, and overall site design for efficient implementation.

  6. Consistent documentation standards

    Used client-provided templates to maintain clarity, uniformity, and ease of review.

Final Outcome

  • Delivered accurate, construction-ready Stormwater plans and profiles.

  • Ensured efficient drainage and runoff management across all phases.

  • Achieved full compliance with local regulations, reducing approval delays.

  • Minimized risks of flooding and waterlogging on-site.

  • Enabled smooth execution with well-coordinated and reliable design documentation.

Client Overview

The client is a US-based land development firm specializing in residential communities. They focus on delivering well-planned, compliant, and efficient infrastructure solutions, relying on high-quality design documentation to support successful project execution.

Want efficient Stormwater drainage for your next project?

We’re just a message away.

Senior Accounts Manager

Nabil Shaikh is the Senior Accounts Manager at Gsource Technologies, overseeing key departments including land surveying, civil engineering, and signage design. With a strong understanding of multidisciplinary workflows, Nabil ensures seamless coordination between teams and clients, driving projects toward successful outcomes. Known for his detail-oriented approach and commitment to delivery, Nabil plays a crucial role in strengthening client relationships and ensuring consistent project performance.

(Enter captcha image text in box)

USA (Corporate Address)

UAE

Pune

Mumbai