Fence Placement Verified for Legal Compliance Using a Monument-Based Boundary Survey

Fence Placement Verified for Legal Compliance Using a Monument-Based Boundary Survey

Introduction

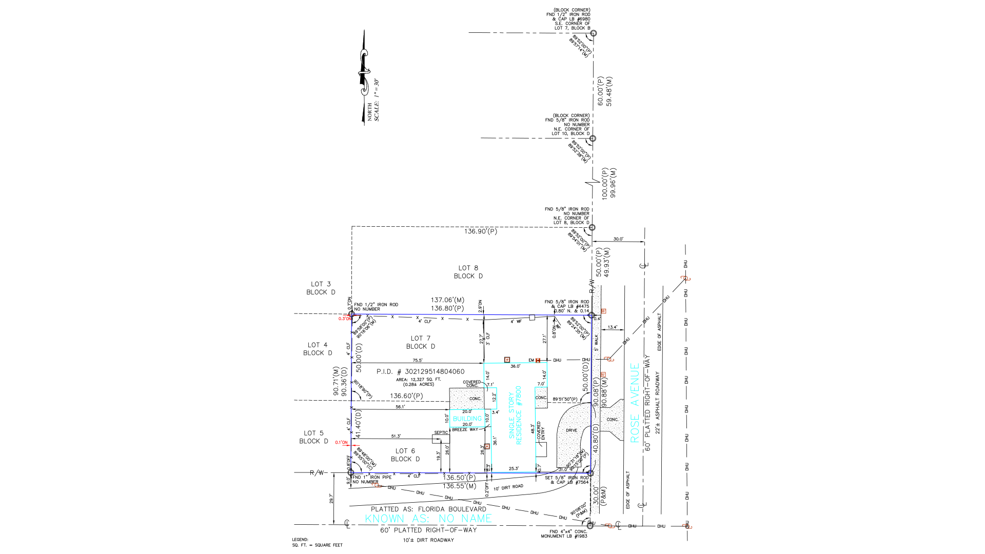
Gsource Technologies was engaged by a private homeowner in California to resolve a fence placement dispute. Using deed descriptions, subdivision plats, and on-site monumentation, the team reconstructed the legal boundary and verified that the fence complied with county zoning ordinances. The property was legally defined through the Lot and Block Method, referencing subdivision plats recorded under the California Subdivision Map Act.

Key Challenges

  • Outdated Plat Data:

The subdivision plat lacked bearings and angles, complicating direct boundary reconstruction.

  • Limited Field Control:

Few accessible monuments were available onsite for orientation.

  • Ambiguous Fence Position:

The fence’s proximity to boundary lines required precise measurement for legal clarity.

Approaches and Solutions

  • Monumentation Strategy:

Located and tied available field monuments (PCs and PIs) to reconstruct property boundaries.

  • Lot and Block Verification:

Confirmed parcel boundaries using subdivision plat references consistent with the Lot and Block Method, supported by deed descriptions.

  • Visual and Legal Integration:

Combined field survey data, plats, and legal records for enhanced positional accuracy.

  • Setback Compliance:

CAD drawings were annotated with county setback and easement details for clear zoning adherence.

  • Quality Assurance:

Populated deliverables using standardized templates with complete property and ownership details; all outputs underwent checklist-driven QA.

Final Outcome

The fence was verified to be within the legal property limits. Its exact location was dimensionally tied to the reconstructed boundary, ensuring compliance with county ordinances. The client received accurate, code-compliant survey drawings in CAD and PDF formats for legal reference and long-term record keeping.

Client Overview

The client, a California-based residential property owner, required professional boundary validation to resolve a fence dispute.

Senior Accounts Manager

Nabil Shaikh is the Senior Accounts Manager at Gsource Technologies, overseeing key departments including land surveying, civil engineering, and signage design. With a strong understanding of multidisciplinary workflows, Nabil ensures seamless coordination between teams and clients, driving projects toward successful outcomes. Known for his detail-oriented approach and commitment to delivery, Nabil plays a crucial role in strengthening client relationships and ensuring consistent project performance.

(Enter captcha image text in box)

USA (Corporate Address)

UAE

Pune

Mumbai